Availiable

Villa C11

2 floors

2 bed, 2 bath

Total area

175,40

sqm

Interior

128,60

sqm

Outdoor area

46,80

sqm

Price

350,000

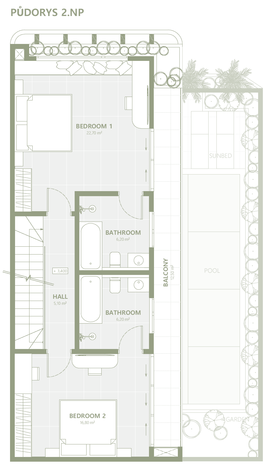
ROOM

AREA

ENTRY

2,10 m²

TOILET

1,70 m²

STORAGE

1,70 m²

LIVING ROOM + KITCHEN

53,60 m²

HALL

5,10 m²

BEDROOM 1

22,70 m²

BATHROOM

6,20 m²

BEDROOM 2

16,80 m²

BATHROOM

6,20 m²

BALCONY

12,50 m²

Book your villa today

Fill the inquiry forma and gent mode details about villas in Bali today.

Book your villa today

Fill the inquiry forma and gent mode details about villas in Bali today.